Découvrez notre gamme d’accessoires. Pour plus d’informations, n’hésitez pas à nous contacter.
GAMME D’ACCESSOIRES

Nous sommes fabricants de toute une gamme d’accessoires pour boxes, intérieur d’écurie ou carrières : mangeoire galvanisée, chandelier, porte-selle, porte-couverture, grille col de cygne avec possibilité d’ajouter une grille de fermeture, etc…
Nous proposons également à la vente différents produits en polyéthylène ou d’autres matériaux : abreuvoirs, mangeoires, brouette à fumier basculante, râteliers.
Nous pouvons fabriquer des produits sur mesure selon le besoin du client, dans un excellent rapport qualité-prix, à l’image de la brouette ergonomique pour le transport des balles rondes, à l’usage très maniable, qui peut être manipulée très facilement par toute personne.
Tous nos produits sont conçus et fabriqués dans nos ateliers dans le Tarn.
APLATISSEURS

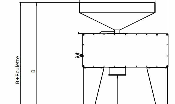
Nous fabriquons également des aplatisseurs à grains Criquet :
– le Criquet CAA 200 kg/h
– le Criquet NCA 500 kg/h
– le Criquet CMAA 1 000 kg/h
Les cylindres peuvent être en acier, fonte ou en inox selon le modèle. Ils possèdent un double entraînement et un écartement réglable à butée mécanique. La suspension est réglable sur le cylindre secondaire.
La trémie peut contenir un minimum de 25 kg de grains et la trappe de débit est réglable.
La sortie de mouture est modulable et les pieds stabilisateurs sont à une hauteur qui permet la manutention manuelle des sacs. Les pieds sont pré-percés pour une fixation au sol. Un kit roulettes est fourni pour permettre le déplacement.
Le moteur possède une puissance différente en fonction de chaque modèle :
– CAA : 0,75KW 230V (4,8A)
– NCA : 1,5KW 230V (9,3A) ou 380V (3,5A)
– CMAA : 4KW 380V (8,1A)
Ils existent en différents coloris :
– Noir/Blanc
– Personnalisée



















